Instituciones

Los Angeles Medical Center Master plan - Los Angeles, California

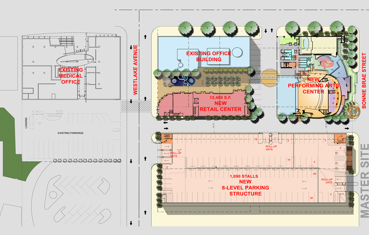
Located in the Streets of Bonnie Brae and West Lake Avenue, a business centered on medical field in a retail building covering a total of 12,480 SqFt . A courtyard in the entrance with a parking structure of 297,600 SqFt total.

English    中文    Español