Master Planning

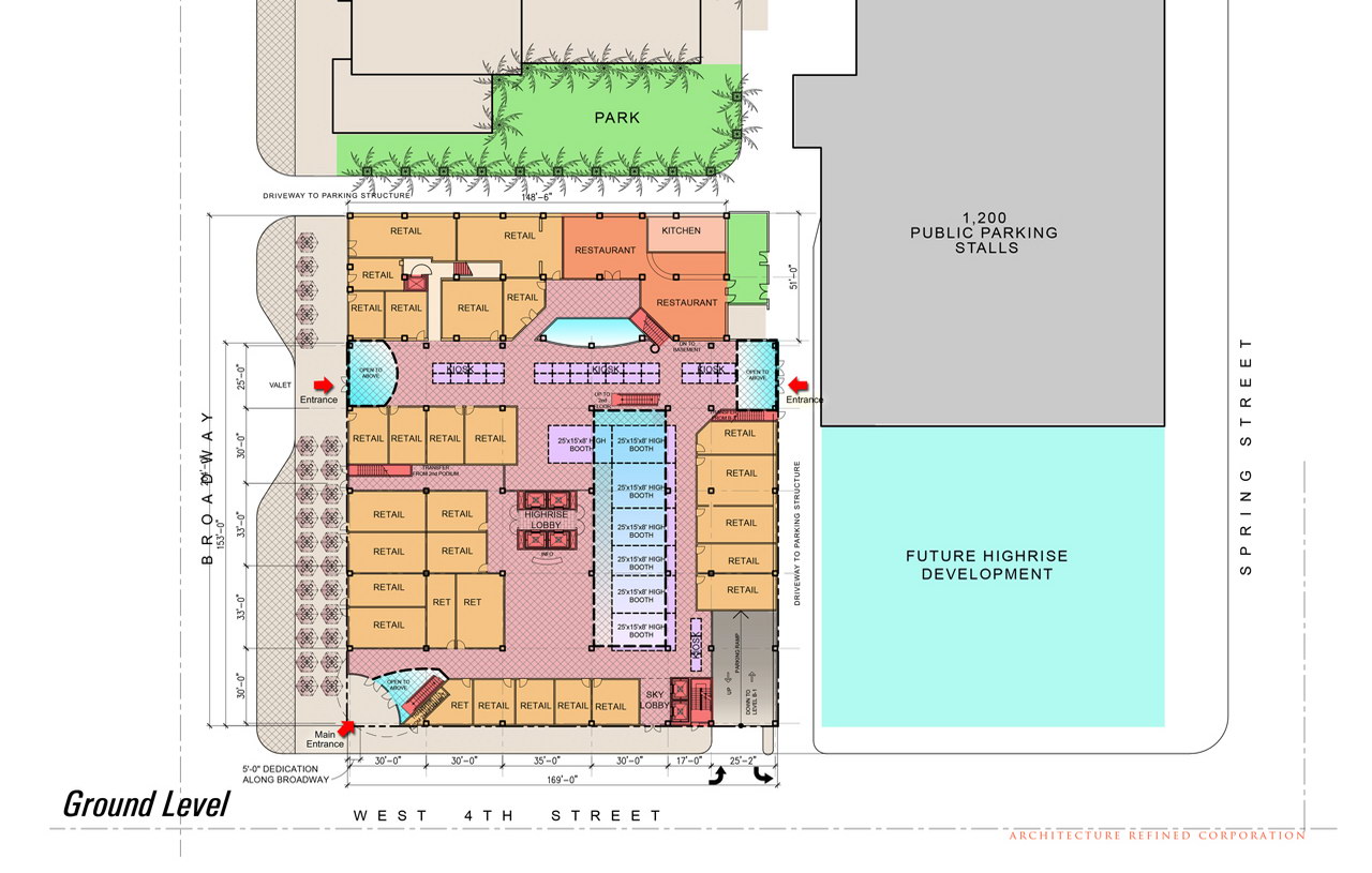
4th & Broadway

South El Monte Marketplace

South El Monte Marketplace

Lixin Waterfront

The Promenade

Arvin Adobe Square

Cinepolis

LA Medical Center

Oak Valley

Ocean Park Village

Old Ranch

The Paseo

Philips Ranch

Riverfront

Hua Yin

American Town Center

Hualuxe Hotel Plaza

Rongchen Residential Plaza

Beijing Winery

Kaifeng Mall

Vermont Village













































