英文 中文 西班牙文
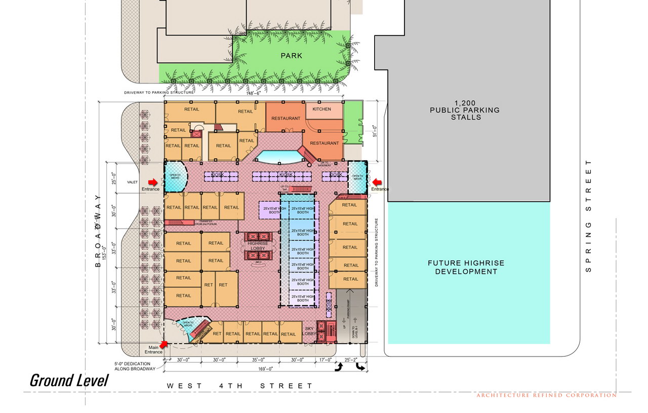
4th & Broadway
South El Monte Marketplace
Hualux Hotel Plaza
Delano Marketplace
Ocean Park Village
Philips Ranch
San Gabriel Square
Vermont Village
Kaifeng Mall
Glendale Mall